新浪时尚

2020中国建筑年度大奖入围名单 你看好哪个?

新浪时尚

关注

原标题:2020 中国建筑年度大奖入围名单

来源:一起设计

在这个信息时代,中国建筑已然参与到全球交流的浪潮之中,于建筑领域而言,这些优秀的建筑作品、建筑师、建筑现象以及建筑理论等,不再受到地域、空间等限制,在各大建筑媒体传播平台上获得了极多的好评。

近日,由知名建筑资讯网站 ArchDaily 发起的中国建筑年度大奖评选活动,在超过 600 个中国项目中,有 10 个项目通过提名脱颖而出,入围 ArchDaily China 的年度十佳建筑,这些作品最终将以投票的形式从中再选出三个获奖建筑。 

这十个项目它们分别是:

· 阿那亚艺术中心

· 北京胡同泡泡 218 号

· 北京大兴国际机场

· 幾樣概念店

· 浙江普利斐特生产基地一期组团

· 云南新寨咖啡庄园

· 吉首美术馆

· 广州历史街区内的一栋极小住宅的改造‘大隐于市’

· 悬岸飞桥

· 南昌绿地红土公园

1。

阿那亚艺术中心

设计:如恩设计

面积:1500㎡

项目年份:2019

摄影师:Pedro Pegenaute、夏至

项目地址:河北省秦皇岛北戴河新区阿那亚黄金海岸社区

这个艺术中心位于秦皇岛黄金海岸社区内,整个设计理念强调重新找回人的情感价值,以及与环境的和谐互融。

从外观看上去,艺术中心拥有厚重而饱满的外墙体,由不同纹理的混凝土墙砖拼接而成。沉稳而厚重的观感,如同一块坚韧的岩石,在不断变换的环境中静驻不动。

到了夜晚,室内光线沿着建筑内部独立的倒锥体空间散射出来,与整座建筑朴实的色调相互映衬,营造出独特的神性之美。

在建筑内部,精心设计的一系列展览空间,各自独立而又彼此联结,形成空间与作品之间的相互呼应。

360° 螺旋上升的参观流线,将参观者引导至每一个展陈空间,营造如水般流畅而自然的参观体验。在这里,人们自由漫步、缓步而上,参观一个个环环相扣的展览空间,深度感受艺术之美。

除了满足艺术展陈的功能外,在建筑内部设计了一个环形的庭院,作为社区居民的公共活动空间,艺术公共项目、沙龙、音乐会、等多种活动都能在这里举行。

2。

北京胡同泡泡218号

设计:MAD建筑事务所

面积: 305.1㎡

项目年份: 2019

摄影师: 田方方、MAD Architects

项目地址:北京

这个北京的四合院是 MAD 建筑事务所进行修复、改造的项目,位于北京前门东区,房子占地面积为 469㎡,坐南朝北。

一百多年来,建筑从最初史载的外国医院,变成了 20 多户居民聚居的大杂院,经历了不同历史时期的多重加建、改建,院落的原本格局已十分模糊。

这次设计打破了原有的传统建筑,MAD 在院子里加入了三个由不锈钢打磨制作而成的‘泡泡’,这些泡泡犹如来自未知时空的小精灵,在旧城环境中闪现‘灵气’。

光滑的表面折射着院子里古老的建筑、树木以及天空,赋予了老建筑新的生命,形成了面向未来的全新空间。

其中一个‘泡泡’作为一处独立的会客室及共享工作空间使用,另一个‘泡泡’除了会客及共享空间的功能外,还可让人们通过内部的回旋楼梯自由穿梭于一二层之间。

3。

北京大兴国际机场

设计:ADPi + ZHA + BIAD

面积:1400000㎡

项目年份:2019

摄影师:Hufton+Crow、李金凤

项目地址:北京

北京大兴国际机场位于北京市大兴区,是世界上最大的单体航站楼。

整个项目耗资 800 亿元人民币,占地 140 万平方米,机场的外观,因为采用了五指型布局,就像一朵五瓣花,又被中国台湾媒体称为‘海星’。

机场共有 4 条跑道,150 个机位的客机坪,24 个机位的货机坪,14 个机位的维修机坪,从值机到托运、登记,全部采用无纸化操作,直接人脸识别就可以完成整套流程,还有智能机器人提供导航指引。

航站楼顶部由一个六边形天窗、六条条形天窗以及八个气泡窗互相连接,形成自然采光体系,可以让室内自然采光面积超过 60%。

庞大的屋盖,以 8 根上宽下窄的 C 型柱支撑,C 形柱顶端最大宽度达到了 23 米,而底部最窄处只有 3 米。

C 型柱支撑都是中空的,能更多的将自然光引进室内,加大了机场的节能性。

同时,整个机场的建设也采用了环保节能的理念,其暖通系统、采光系统、供水系统等都进行了绿色设计。

4。

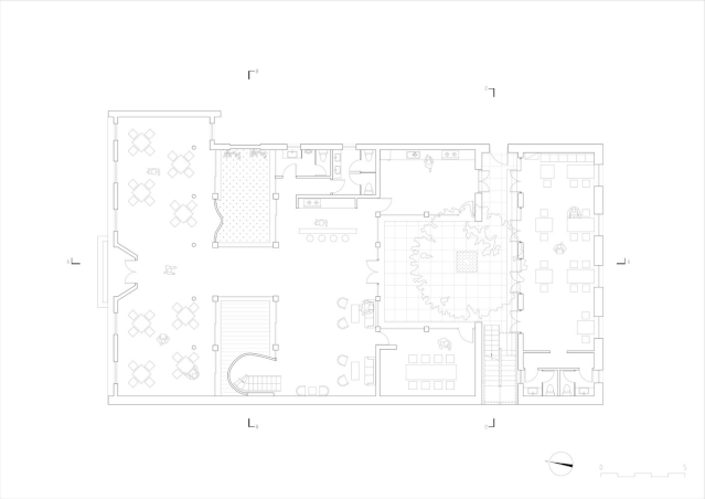
幾樣概念店

设计:Studio 10

室内设计:Studio10

面积:120㎡

项目年份:2019

摄影师:张超

项目地址:深圳市南山区文心五路33号海岸城二层263号商铺

这是 Studio 10 为一个原创极简主义女装品牌几样打造的门店设计。

在这个 120㎡ 的空间内,设计师通过叠加和运用半透明及透明材料,搭配 Kvadrat RafSimons 系列灰绿色绒布垂帘及柔和细腻的人工照明,创造出丰富的层次和空灵的空间维度,也与品牌极简而富有灵气的概念暗合。

入口橱窗地面和通道以玻璃砖铺设,底部隐约衬出几样特有的灰绿色漆,与侧壁的半反射玻璃、背景淡蓝色透明玻璃砖矮墙和镜面吊顶产生重叠和投影。

步入铺内,由透明亚克力空心管排列围合而成的更衣室最为醒目,仿若漂浮在空间中的一方小舞台。

店铺内挂衣杆均采用定制磨砂亚克力棒,以银色脚手架金属连接件组装成高低、角度均可调节的高适应性服装展示系统。

亚克力立杆底部固定于绿色大理石基座上,这样设计也可以兼做展示台、座凳或置物台等。

5。

浙江普利斐特生产基地一期组团

设计:gad · line+ studio

面积:26004.2㎡

项目年份:2019

摄影师:存在建筑、简直建筑、wen studio

项目地址:浙江海宁尖山新区

这个项目是浙江普利斐特委托 gad · line+ studio 设计的,他们期望工厂能跳脱出周围传统产业园区的设计模式。

出于对生产的物流考虑,设计师将建筑与外围环形车道连接,以实现高效物流进出,也为工人的日间生产和工余生活都提供了最为高效的路径连接。

建筑外墙通体饰以白色瓦楞钢板,纵向的条窗、瓦楞纹理及折面屋顶构成了干练、简洁的肌理。

面向园区内部,连续的 U 玻打造出一种连续的半透明状态,白天和夜间会产生完全不同的视觉质感。

室内设计延续了原有的建筑空间理念,以‘偶遇’、‘初探’、‘登高’、‘望远’四个阶段循序展开。并进一步结合园区的使用模式和具体要求,展开了针对性的整体空间改造和室内重构。

门厅的设计突显仪式感,呼应外立面的特质同时缓冲内外空间转换。顶面引入半通透的金属拉网板作为主要的元素,结合 T8 灯管和线性条形灯,与裸露的原始建筑结构,使得顶部空间具有丰富的可读性和延展性。

这个在公共区域内用金属网半围合出来的空间,介入温暖的颜色,在工作之中又多了一丝轻松氛围。

建筑的至高层,是业主的私人接待及办公空间。入口区域吊顶和墙面用整木方实现水波纹的效果,呼应远处钱塘江浪潮。

同时具有一定封闭性的内向空间,在人的心理上也建立起一种聚居环境的安全感、庇护感和认同感。

6。

云南新寨咖啡庄园

设计:迹·建筑事务所(TAO)

面积:3140㎡

项目年份:2018

摄影师:陈颢、苏圣亮

项目地址:云南省保山市潞江坝坝湾村

这是迹·建筑事务所(TAO)的设计,项目由两个建筑组成,一座建于八十年代已经废弃的电影院与一栋灰砖建筑,两个建筑相连形成了三个庭院:中心庭院、大树庭院、下沉庭院。

△轴测图

建筑外墙采用了砖和混凝土两种材料,与环境既有联系又有变化。

从底层至顶层,以从重到轻的空间形式渐变,塑造了每一层不同的场所特质,回应了功能上从储物、生产到观景享受的多样需求。

底层是储藏咖啡豆的仓库,整体氛围像是一个地窖。加工区在中间层,满足了烘焙和包装咖啡豆的需要,设计采用了大跨度钢梁与单向砖拱结合的形式,获得连续的开放空间的同时,也将庭院与峡谷的风景引入建筑内部。

最顶层的建筑由砖砌体变为混凝土框架形式,大面积的开窗设计以获得最大的开放性,满足人们俯瞰峡谷景色的需要。

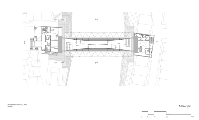
7。

吉首美术馆

设计:非常建筑

面积:3535.4㎡

项目年份:2019

摄影师:田方方

项目地点:湖南省吉首市乾州古城

这个美术馆位于湘西土家族苗族自治州的吉首市,设计师为了使其不脱离受众,将美术馆设计成廊桥模样,两岸的桥头部分与万溶江畔的排屋紧密相连在一起。

这样设计不仅保持传统廊桥的交通与歇脚功能,又引入新的艺术内容,将这一古老建筑类型加以现代化。

美术馆以桥上桥的形式构成。下层的钢桥是开放的桁架结构,为行人通过提供了一个带顶的街道,同时也助于疏导洪流,上层则设计成画廊。

这个由玻璃幕墙和筒瓦遮阳系统围合而成的大展厅,还可以用于举办临时展览。

美术馆的桥头两端是服务空间,如:门厅、行政办公、商店和茶室都被安置在内。

8。

广州历史街区内一栋极小住宅的改造‘大隐于市

建筑师:URBANUS 都市实践

面积:96.4㎡

项目年份:2018

摄影师:张超

项目地址:广州市同福东路蒙圣社区上蒙圣街十八号

这个住宅项目是一幢三层半砖混结构的小楼,单层建筑面积仅有 22㎡,四周为密集的房屋所包围。

建筑外墙选用了褐红色天然纹理的小片石材,颜色与周边的老旧建筑相近。

URBANUS 都市实践的改造设计是由内及外的,他们在极小的空间内重新组织生活功能,用雕镂的方法使建筑内部上下贯通,房中有房,小中见大。

在施工上从加固整体结构着手,将原楼梯拆除改为舒适的折返梯,形成新的垂直流线。

还在墙面不同位置开辟出一系列独特的景窗,不仅为各层带来极佳的自然采光,也将周边风景引入斗室之中。

顶楼设有一个小房间和一个露台,这里并没有固定的使用场景是一个非常灵活空间,适于赏月、饮茶和沉思。

9。

岸飞桥

设计:来建筑设计工作室

面积:20㎡

项目年份:2019

摄影师:赵奕龙、唐徐国

项目地址:安徽省黄山市祁门县闪里镇

这一座跨度为 10 米的桥,位于安徽祁门县桃源村,是为了便于村民去田间耕作而设计的。

根据现场情况设计师选择了悬臂梁结构,以毛竹作为主材料,这样弯曲的桥身可以更加接近合理应力线,比起工业化的材料更具有一种理性的优势。

10。

南昌绿

地红土公园

景观设计:水石设计

面积:160000㎡

项目年份:2018

摄影师:日野、孙翀、张华宏、潘爽

项目地址:江西省南昌市安义县龙安大道

红土遗址公园是集大地景观、自然体验、生态修复、科普认知,休闲放松为一体的自然公园。

公园内外有 4 米的高差,利用现场取土的夯土墙作为入口景墙,夯土的肌理既是呼应红土地质的断面分层,同时有一种回归传统工艺的拙朴之美。

以上这 10 个作品中有没有你喜欢的呢?

加载中...